Particulier
JARDINS
Localisation
Sao Paulo · Brésil
Localisation
Sao Paulo · Brésil
Localisation
Sao Paulo · Brésil
Surface
215 m²
Surface
215 m²
Surface
215 m²
Année
2024
Année
2024
Année
2024
Photos
Archive personnelle
Photos
Archive personnelle
Photos
Archive personnelle
Rénovation complète · Agencement sur mesure · Lighting
Rénovation complète · Agencement sur mesure · Lighting
Rénovation complète · Agencement sur mesure · Lighting



SÉRÉNITÉ MODERNE
SÉRÉNITÉ MODERNE
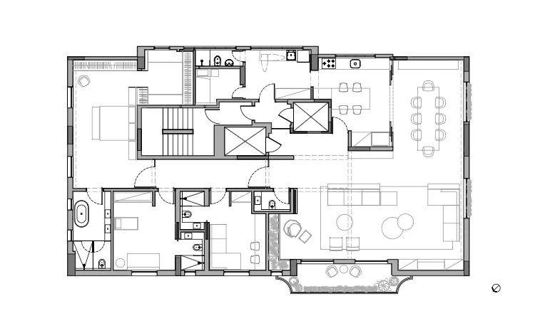
Rénovation intérieure complète pour une famille aux usages multiples, articulant espaces privés, semi-privés et collectifs pour allier besoins individuels et partage.
L'agencement sur mesure, les collections d'art et les pièces iconiques de design dialoguent avec l'architecture moderne du bâtiment, tandis que le parquet et les menuiseries d'origine sont préservés. Une terrasse végétalisée prolonge les espaces de vie et renforce le lien intérieur/extérieur.
Rénovation intérieure complète pour une famille aux usages multiples, articulant espaces privés, semi-privés et collectifs pour allier besoins individuels et partage.
L'agencement sur mesure, les collections d'art et les pièces iconiques de design dialoguent avec l'architecture moderne du bâtiment, tandis que le parquet et les menuiseries d'origine sont préservés. Une terrasse végétalisée prolonge les espaces de vie et renforce le lien intérieur/extérieur.

Ce que j’admire le plus dans ce travail, c’est l’écoute.
Tomas Yoshio Makiyama




Ce que j’admire le plus dans ce travail, c’est l’écoute.
Tomas Yoshio Makiyama




Ce que j’admire le plus dans ce travail, c’est l’écoute.
Tomas Yoshio Makiyama




Ce que j’admire le plus dans ce travail, c’est l’écoute.
Tomas Yoshio Makiyama




Ce que j’admire le plus dans ce travail, c’est l’écoute.
Tomas Yoshio Makiyama




Ce que j’admire le plus dans ce travail, c’est l’écoute.
Tomas Yoshio Makiyama




Ce que j’admire le plus dans ce travail, c’est l’écoute.
Tomas Yoshio Makiyama




Ce que j’admire le plus dans ce travail, c’est l’écoute.
Tomas Yoshio Makiyama




Ce que j’admire le plus dans ce travail, c’est l’écoute.
Tomas Yoshio Makiyama




Ce que j’admire le plus dans ce travail, c’est l’écoute.
Tomas Yoshio Makiyama




Ce que j’admire le plus dans ce travail, c’est l’écoute.
Tomas Yoshio Makiyama




Ce que j’admire le plus dans ce travail, c’est l’écoute.
Tomas Yoshio Makiyama




Paris · Sao Paulo
Architecture d'intérieur
©Atelier Confidentiel · 2025

Paris · Sao Paulo
©Atelier Confidentiel · 2025

Paris · Sao Paulo